1、大灣區時代 都市圈中心|項目處于粵港澳灣區“一小時”都市圈范圍內,1 4萬億深圳東進門戶,深圳都市圈規劃,打造“龍崗中心-坪山中心”
房屋戶型:1室 、2室 、3室 、
住宅類型:
區域:深圳市龍崗大道與惠州市新圩鎮東風路交匯處
最新開盤:-
立即咨詢
24小時咨詢熱線:13267179661
1、大灣區時代 都市圈中心|項目處于粵港澳灣區“一小時”都市圈范圍內,1.4萬億深圳東進門戶,深圳都市圈規劃,打造“龍崗中心-坪山中心”,重新優化資源配置,未來或許成為深圳都市圈中心位置。
2、1高速2干道3軌道疾速出行|鐵3號線延長線六聯站(建設中)直線距離約2.8公里,舉步可達地鐵21號線吉坑站(規劃中),近享深惠城際軌道新圩站(規劃中),出門即上深圳外環高速,龍崗大道、鹽龍大道,實現深圳東部與市中心區乃至香港的快速出行。
3、近享龍崗繁華 擁攬精奢生活|項目出發約5.4公里到達坪地宜城PARK購物廣場,約10公里到達三館一城、約11公里可到達龍崗雙龍天虹、約12公里可到達世貿百貨、約13公里可到達萬科廣場、約15公里可到達星河COCO Park以及山姆會員店等大型商業中心。
世界級低碳城 宜居生態生活|世界級2.5產業創智園區、國際化低碳科技示范城區,坪地碳匯公園、坪地森林公園、坪地企爐坑水庫郊野公園、松子坑郊野公園四大公園,黃竹坑水庫、長坑水庫、白石塘水庫、三坑水庫、石豹水庫、企爐坑水庫、和尚徑水庫七大生態水庫,以及清林徑森林公園及銀瓶山森林公園天然氧吧環繞。
4、全面醫療 護航健康:三級甲等的龍崗中心醫院,二級甲等龍崗區人民醫院、龍崗區婦幼保健院以及龍崗中醫院,斥資約8.3億擬建的(三級標準建設)惠陽第二人民醫院就在項目附近的新圩東風村 。
5、名校在旁 潤澤精英|九年一貫制學校(華中師范大學附屬惠陽學校)、產徑小學、新圩中學,師資力量雄厚。
6、墅質大盤 經典傳承|逾50萬㎡經典大盤,總體規劃容積率約2.12,涵蓋別墅和高層的低密墅區;三載品質打磨,新品閃耀登場,9棟高層(1棟復式)錯落布局,容積率低至2.95,將更多面積留給花園;建筑基座延續大面積使用干掛大理石(低樓層立面、入戶大堂等),內部設計延續鄰里空間,無梁設計金剛砂停車場,標配進口三菱電梯。
7、園林+街區 玩樂兩相宜|1.4萬㎡情景型互動園林,度假式泳池、品質會客廳、陽光草坪、休閑健身等9大分區于一身,近1公里夜光跑道貫穿始末,無線wifi局部覆蓋;下樓共享一站式商業購物中心、漫步式街區,自帶9班制幼兒園。
8、一級物管 貼心服務|特聘連續6年榮獲“中國物業服務滿意度TOP1、連續11年榮獲中國物業服務百強的金地管家為您服務,將豪宅大盤的尊貴體驗落地于此。
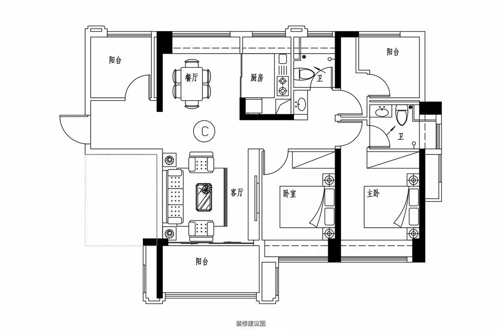
高拓空間 闊綽生活|新品首推約81-97m2四-五房的高層產品,采光優越,拓展面積和使用率極高,目前市場上絕無僅有的戶型。
9、



惠州市龍崗大道與長山路交匯處
服務熱線:何永斌 聯系方式:13267179661
惠陽淡水街道濱河北路半島一號
服務熱線:何永斌 聯系方式:13267179661
深圳市龍崗大道與長山路交匯處
牧云溪谷項目建面約220萬平米,未來規劃超過400萬方,是集山湖別墅、高端住宅、星級精品酒店、中心級商業MALL、雙語名校、私家會所、運動公
深圳市龍崗大道與惠州市新圩鎮東風路交匯處
1、大灣區時代 都市圈中心|項目處于粵港澳灣區“一小時”都市圈范圍內,1 4萬億深圳東進門戶,深圳都市圈規劃,打造“龍崗中心-坪山中心”
惠州市惠陽區淡水星河東七路1號
廈深線惠州第一站,惠州南站亞公頂森林公園旁,十一載醇熟大城。星河丹堤5分鐘到達惠州南站,家門口星河CocoGarden商業,永輝超市,百年名
惠州市惠陽淡水星河東七路1號
廈深線惠州第一站,惠州南站亞公頂森林公園旁,十一載醇熟大城。星河丹堤5分鐘到達惠州南站,家門口星河CocoGarden商業,永輝超市,百年名
惠州市惠陽區淡水星河東七路1號
廈深線惠州第一站,惠州南站亞公頂森林公園旁,十一載醇熟大城星河丹堤5分鐘到達惠州南站,家門口星河CocoGarden商業,永輝超市,百年名校